Objectinformatie
Adres
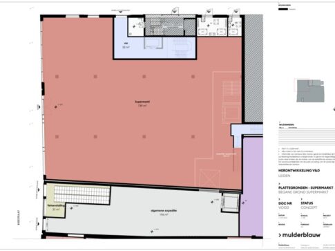
Breestraat 78, Leiden.
Ligging
Retail-/horeca propositie gesitueerd in het hart van historisch Leiden.
Het betreft het huidige Sting pand.
Oppervlakte
Ca. 740 m² b.v.o. begane grond + gemeenschappelijk expeditiehof van ca. 200 m² b.v.o.;
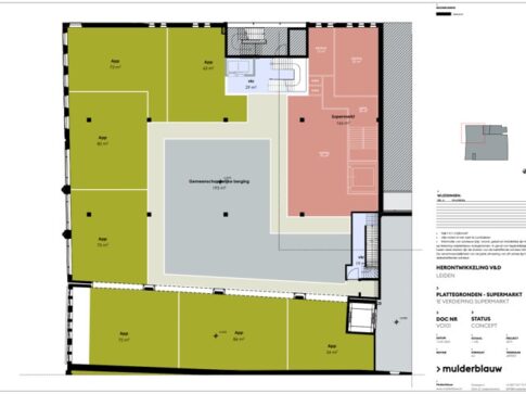
Ca. 165 m² b.v.o. eerste verdieping.
Huurprijs
Op aanvraag.
Bijzonderheden
Geen.










