Objectinformatie
Adres
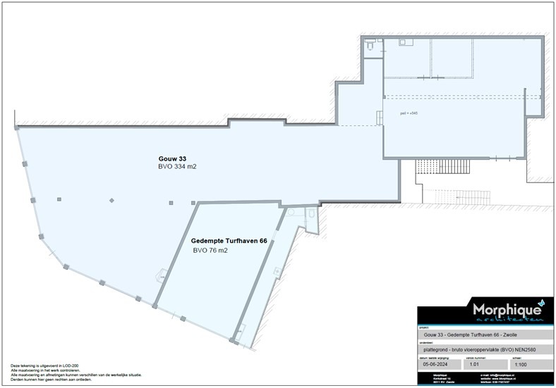
Gouw 33, Hoorn.
Ligging
De Gouw is een van de belangrijkste straten in het historische centrum van Hoorn met elke zaterdag een gezellige markt. De levendige winkelstraat trekt zowel inwoners als toeristen. Het biedt een mix van boetieks, speciaalzaken en cafés. Ook worden er regelmatig evenementen gehouden in het centrum van Hoorn, waarbij de Gouw vaak een belangrijke rol speelt als verbindingsroute en ontmoetingsplek.
Oppervlakte
Ca. 334 m² b.v.o. begane grond.
Huurprijs
€ 69.000,- excl. btw per jaar.
Bestemming
Centrum-1, bestemd voor detailhandel; voor ander gebruik dan detailhandel is toestemming van de gemeente Hoorn vereist.













